Skip to content

Фотогалерея

  • Главная
  • Контакты

Потекла электропомпа от газели как бороться

Электропомпа от Газели. Часть 1 — Lada 4x4 3D, 1,7 л, 1995 года ...

Электропомпа от ГАЗели на Ланос. — Daewoo Lanos, 1,6 л, 2004 года ...

Электропомпа от Газели. Часть 2 — Lada 4x4 3D, 1,7 л, 1995 года ...

Электропомпа от Газели. Часть 1 — Lada 4x4 3D, 1,7 л, 1995 года ...

Электропомпа от "газели" — Москвич 2141, 2 л, 1999 года | своими руками ...

Электропомпа от Газели. Часть 1 — Lada 4x4 3D, 1,7 л, 1995 года ...

Электромотор отопителя от 2109 в отопитель 3110 и электропомпа от ...

Электропомпа от Газели. Часть 2 — Lada 4x4 3D, 1,7 л, 1995 года ...

Электропомпа от Газели на радиатор печки — Toyota Camry (V40), 2 л ...

Дополнительная электропомпа от газели — Lada 112 Coupe, 1,6 л, 2009 ...

Электропомпа от Газели

Электропомпа от газели на печку дэо нексия - YouTube

Электропомпа от газели — Lada 2106, 1,3 л, 1987 года | тюнинг | DRIVE2

Электропомпа от газели — Lada 2106, 1,3 л, 1987 года | тюнинг | DRIVE2

Электропомпа от ГАЗЕЛЬ плюс термостат от 10-ки — Lada 11113 Ока, 0,8 л ...

Загудела коробка. — ГАЗ Газель, 2,9 л, 2010 года | своими руками | DRIVE2

Электропомпа от газели — Lada 2106, 1,3 л, 1987 года | тюнинг | DRIVE2

Электропомпа от Газели — Jeep Grand Cherokee (ZJ), 5,9 л, 1998 года ...

Электропомпа от Газели на печку — ЗАЗ 1102, 1,3 л, 1992 года | тюнинг ...

Электропомпа от Газели. Часть 1 — Lada 4x4 3D, 1,7 л, 1995 года ...

Электропомпа от Газели — Lada 21120, 1,5 л, 2001 года | тюнинг | DRIVE2

Электропомпа от ГАЗели на ТАЗ 2109 — Lada 21093i, 1,5 л., 1999 года ...

Электропомпа от Газели. Часть 2 — Lada 4x4 3D, 1,7 л, 1995 года ...

Усиление рессоры нового образца для ГАЗели (2+ тонны) | Mosressora

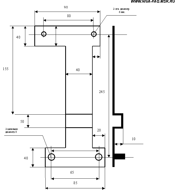
Электропомпа от Газели @ Нива 4x4

Усиление рессор нового образца для ГАЗели (+2 тонны) | Mosressora

Электропомпа от Газели @ Нива 4x4

Электропомпа от газели — Lada 2106, 1,3 л, 1987 года | тюнинг | DRIVE2

Вопрос для тех у кого установлена электропомпа от газели? как должна ...

Термостат от ШН и электропомпа от Газели в 2121

Электропомпа от газели — Lada 2106, 1,3 л, 1987 года | тюнинг | DRIVE2

როდის და რა სიმძლავრით უნდა ჩავრთოთ გათბობა, რომ ხარჯები შევამციროთ ...

Для утепления салона автомобиля электропомпа. Газель, электропомпа ...

Электропомпа от Газели @ Нива 4x4

Оригинальные диски для ГАЗели на стенде для испытания колёс ...

  • Вперед Рисунок день россии раскраска
  • Назад Пляж в лазаревском 2022

Новые страницы

Акт возврата квартиры по договору аренды образец

Авторусь запчасти мытищи

Чертеж детали в трех видах с размерами 8 класс

Что нельзя рисовать в исламе

Экзамен на оружие онлайн

Эстеровые моторные масла марки

Филиппинские острова карта

Фитнес браслет рейтинг 2023 цена качество

Гдз по математике стр 81 упр 5

Гугл карта дзержинска нижегородской области с улицами и домами

Ходатайство о назначении судебной экспертизы образец

Кафе троицкое ижевск советская 25

Канакина рабочая тетрадь 3 класс гдз

Карта любви роберт кэмп трагос

Картинки в стиле инди кид раскраски

Казахские номера машин

Лада гранта габариты кузова

Лисичка мимишки картинка

Логическая репликация postgresql

Нет зарядки ваз 2107 инжектор

Персонификатор

Применение транзистора

Процесс тренировки сознательного контроля над временем

Распиновка таймера webasto

Расторжение контракта в одностороннем порядке по 44 фз заказчиком образец

Схемы плетения из бисера браслетов на станке

Смета на поездку на соревнования образец

Стоматит на щеке внутри

Связать коврик из джута на пол крючком со схемами прямоугольный

Зидовудин

cdn.zecar.ru