Skip to content

Фотогалерея

  • Главная
  • Контакты

Профсан эксперт

AGIKgqOpW0fUofOHveaFj1qLy-5tzpENVYHot9jk2JGznw=s900-c-k-c0x00ffffff-no-rj

ПРОДУКЦИЯ

PR эксперт рассказал — Teletype

Профессор Александр Зак, эксперт CBSD Thunderbird

\"Полчаса с экспертом: от идеи до реализации проекта\" - YouTube

БИЗНЕС-ЭКСПЕРТЫ - Персонал - YouTube

Полукомбинезон ЭКСПЕРТ - YouTube

курс \"Master Эксперт\"

Бизнес Эксперты. Персонал. - YouTube

Купить ЭКСПЕРТ Комплекс (комплект картриджей) в Москве и РФ по цене 3 ...

БИЗНЕС-ЭКСПЕРТЫ: Продвижение - YouTube

\"Надо поднимать престиж врачей\" - эксперт - YouTube

Эксперты и экспертные организации - YouTube

??Анализ наступления России от военного эксперта - YouTube

ПРОДВИЖЕНИЕ ЭКСПЕРТОВ В ИНСТАГРАМ - YouTube

Эксперт ТехКом

Центр ЭКСПЕРТ - YouTube

Купить фильтр ЭКСПЕРТ СЛИМ Стандарт в Москве и РФ по цене 4 140 ? в ...

Эксперт | эксперт и специалист | правовой статус эксперта - YouTube

Эксперт С - YouTube

Выбор эксперта кондиционер в квартиру - YouTube

Эксперт Профи - анализатор молока и сливок — Таволга

Специалист-эксперт / ФАС — Teletype

Купить фильтр ЭКСПЕРТ Жесткость в Москве и РФ по цене 4 490 ? в ...

Видеообзор пылесоса Dyson DC41C Origin Extra с экспертом «М.Видео ...

Корпус экспертов РАН

Советы от эксперта ?? зачем исправлять неправильный прикус - YouTube

Коллаген эксперт крем-лифтинг для лица восстанавливающий ночной ...

Эксперт НКО - Артем Петернев - YouTube

Миграционный Эксперт | Дзен

Эксперт программы Быстрое построение ecommerce канала продаж - YouTube

«Полчаса с экспертом» на тему: «Бизнес-конструктор» - YouTube

Эксперт ПРОФИ - анализатор молока, сливок. Гарантия завода.

Инструкция по работе со своим профилем от эксперта - YouTube

Специалист-эксперт, работа в Приморское УФАС России во Владивостоке ...?

повтор :: работа мечты :: должность :: эксперт :: РПЦ / смешные ...

Эксперт аренды - YouTube

Пломбы Казань | Эксперт - Пломбы Казань

Фильтр проточный Барьер ЭКСПЕРТ Жесткость – Гипермаркет «Мегастрой» Брянск

\"Начал систему перезагрузки\". Эксперт отметил эффективность и ...

Эксперт Анпилогов: ВСУ не удержат Херсон, даже если смогут войти в ...

Профессионал и интернет эксперт | Пикабу

Где же Nikon Z 9?

Эксперт Спецодежда, ООО - Гетсиз.ру

Эксперт: Техподдержка (Короткометражка, Русский дубляж) - YouTube

Эксперт 48. - YouTube

Эксперт о секс-скандале в Голливуде: «Перед интернетом все равны ...

Эксперт: Объекты критической ИКТ-инфраструктуры Азербайджана требуют ...

Держатель для лейки Профсан, металлический цена - купить в интернет ...

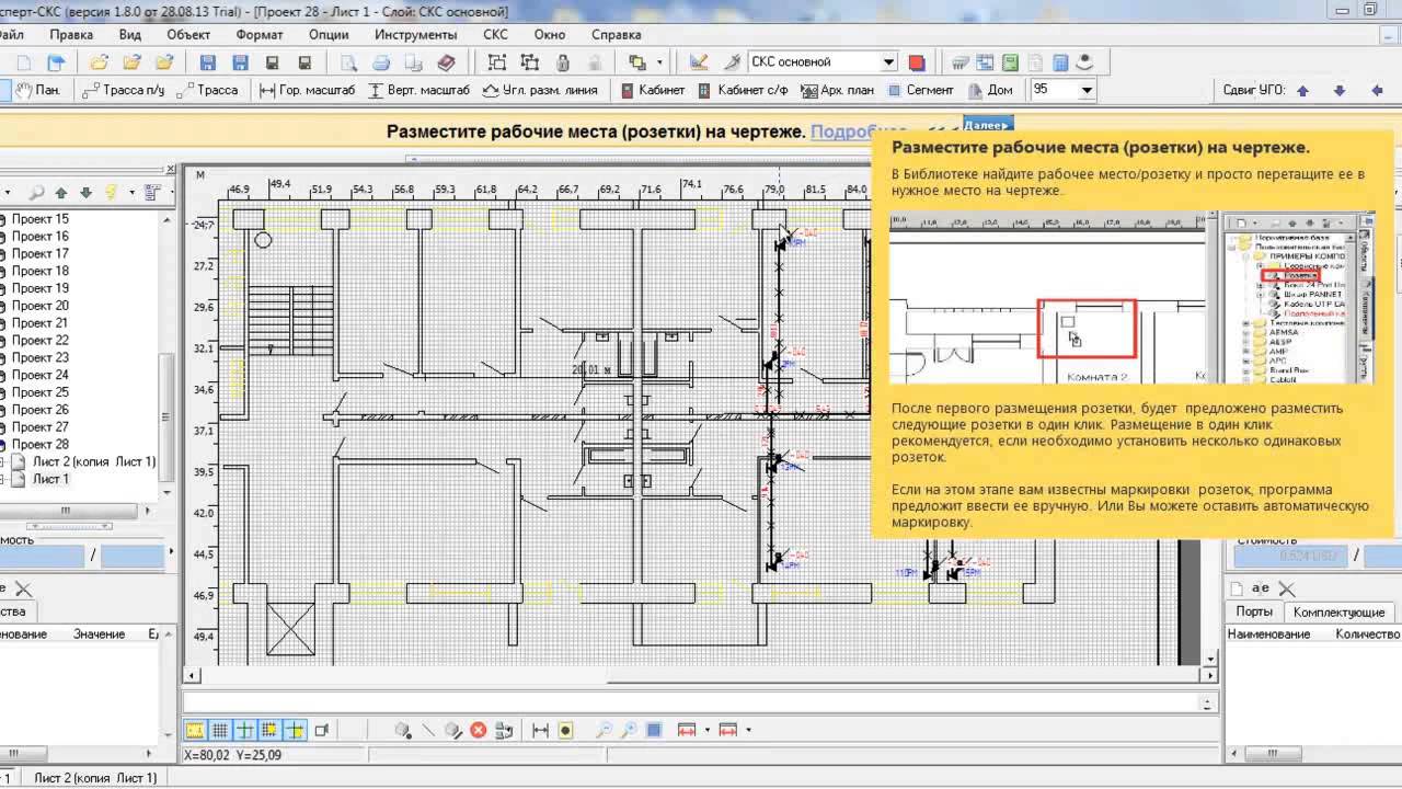
Эксперт СКС создание проекта - YouTube

Металлическая дверь порошок/мдф отделка со стеклом Е1233: купить в ...

В СК призвали осудить причастных к геноциду советского народа в войну ...

Российский смеситель для ванной ПрофСан ПСМ 523-023 | Смесители для ...

Эксперт 46. - YouTube

Аудиторская фирма «Эксперт-Аудитор»

Прошёл эксперт - YouTube

Эксперт 352. - YouTube

Российский смеситель для ванной ПСМ - ПрофСан - 523-К/017

Эксперт 54. - YouTube

Эксперт 480. - YouTube

Как выбрать профессию? Говорит ЭКСПЕРТ - YouTube

Эксперт 278. - YouTube

Эксперт — ГК Энергоконтракт

  • Вперед Microchip studio
  • Назад Простые радиосхемы

Новые страницы

1750 3

Английский язык 4 класс учебник 2 часть ответы афанасьева

Департамент культуры и спорта янао

Этнос схема

Гдз английский язык 11 класс кузовлев

Гдз математика третий класс страница 72

Гдз по математике 3 класс рабочая тетрадь страница 37

Гдз по рус 4 класс 1 часть

Графический дизайн курсы минск

Как нарисовать принцессу луну и принцессу селестию и каденс

Как рисовать микрофон

Камера царицы в пирамиде

Карта молдовы с городами и селами на весь экран

Клей картинка для презентации

Кмб банк

Кунсткамера пушкинская карта

Мадагаскарская ваниль

Математика пятый класс номер 945

Накрутка спидометра патриот

Новокосино в москве

Образец заявления в суд на банк

Очистка помещений после пожара

Основная схема чертежа

Продажа квартир в аркадаке на авито

Растяжка обуви в мастерской в длину

Рено логан блок предохранителей в моторном отсеке

Схема виды времени

Сколько миссий ламара в гта 5 онлайн

Сравнить калину кросс и рено сандеро степвей

Учебные планы гуап

cdn.zecar.ru